士林區忠勇街郭氏林氏新建大樓雙車位雨農市場
首頁
│
法拍屋導覽
│
法拍地導覽
│
房仲導覽
│
House-Info房屋網
│
889house.info
│
申請房仲網站
07-7963288
客服電話
首頁
台北
新北
基隆
桃園
新竹
苗栗
台中
彰化
南投
雲林
嘉義
台南
高雄
屏東
台東
宜蘭
花蓮
澎湖
金門
現在位置:
首頁
›
台北法拍屋
›
士林法拍屋
›
士林區忠勇街郭氏林氏新建大樓雙車位雨農市場-台北市士林區忠勇街40巷4弄1號6樓
售
士林區 忠勇街 【郭氏林氏新建大樓】雙車位 雨農市場
列印
售6055萬
案號:
113助祥21370 115/01/12(一) 14:30
類型:
法拍大樓
總登記坪數:
120.43坪
每坪單價:
50.28萬/坪
地址:
台北市士林區忠勇街40巷4弄1號6樓
小顏
(煩請告知聯絡人,您是在House-Info房屋網看到廣告,感恩幫忙)
0911-965-339
士林區忠勇街郭氏林氏新建大樓雙車位雨農市場
公司名稱:
鑫創資產管理有限公司
公司地址:
新北市新莊區中環路二段423號一樓
個人網站:
www.1314home.tw
留言
檢舉
物件介紹
詳細資料
最後更新
:
1天前
銷售狀態
:
待標中
社區/大樓
:
士林郭氏林氏新建大樓
屋齡
:
21年
無障礙環境
:
有
所在樓層
:
7樓/共8樓
管委會
:
有
中庭
:
沒有
電梯
:
有
邊間
:
是
法拍件
:
本件是法拍屋
拍次
:
第二拍 點交
開標日期
:
2026/01/12(一) 14:30
法拍件
:
周邊環境
生活機能
:
雨農市場,福志公園,福林國小。
捷運站
:
士林
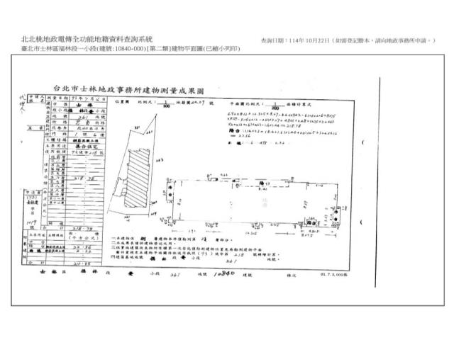
坪數說明
建物登記總坪數
:
120.43
主建物坪數
:
66.18
附屬建物坪數
:
7.53
公共設施坪數
:
46.72
土地登記總坪數
:
32.37
特色描述
【法院筆錄內容】
1‧10840建號拍定後點交。
2‧民國114年1月15日現場執行時,第三人魏○樺在場稱為承租人,租約已到期,因債務人盧O章已過世,不知該向何人給付租金,附有編號12號、13號之機械停車位,現由第三人使用。惟現在實際情形如何,仍請應買人自行查明注意。
3‧投標人應自行查明債務人有無積欠管理費,並注意拍定後民法第826條之1第3項規定之適用問題。
《清償借款》
【保證金】
1211萬
【拍賣履歴】
一拍2025/11/10流標底標價格7567萬
二拍2026/01/12底標價格6055萬
三拍底標價格4842.9萬
四拍底標價格3874.3萬
【焦點法拍履歴】
👩🏻⚖️從業二十年以上經驗|競競業業|正派經營
🎯投標準備⇥法拍流程說明|標單填寫|案件現場勘查有無特殊情事|成本評估分析
💰銀行貸款⇥法拍物件估價|投標人財力評估|銀行代墊款協助辦理|最高八成
🏡拍定得標⇥強制執行書狀、履勘陳報書狀往返|債務人搬遷協商|遺留物造冊查估
🎁委託代標⇥免費|委託代標未得標⇥免費
🏢鑫創資產管理有限公司
顏麗杏0911-965339營業員證號:(101)登字第212862號
連真甄0909-031993營業員證號:(101)登字第192002號
更多物件☞焦點法拍
經紀人李彥槿:109北市經證字第02110號
物件照片
台北士林法拍大樓-0
台北士林法拍大樓-1
台北士林法拍大樓-2
台北士林法拍大樓-3
台北士林法拍大樓-4
台北士林法拍大樓-5
台北士林法拍大樓-6
台北士林法拍大樓-7
台北士林法拍大樓-8
台北士林法拍大樓-9
台北士林法拍大樓-10
物件地圖
士林區忠勇街郭氏林氏新建大樓雙車位雨農市場
士林區忠勇街郭氏林氏新建大樓雙車位雨農市場
到Google查看地圖
到Google查看街景
贊助商廣告
物件留言
請注意,如果您詢問的內容與物件不相符合或是廣告,經過審核,系統將會直接刪除您的發問內容
檢舉不實
黃金曝光
中正區
售904萬
台北中正區重慶南路三段129號3樓-6套房,法拍屋代標 專線0913-303663 +LINE
類型:大樓_套房_強恕高中商圈
坪數:9.49坪
格局:1房
內湖
售7449萬
台北內湖南京東路六段259號13樓-2
類型:大樓
坪數:89.74坪
格局:3房
松山
售4883萬
台北松山三民路35巷1號3樓-2
類型:大樓
坪數:74.76坪
格局:4房
信義區
售3852萬
台北信義區信義路五段109號5樓
類型:大樓
坪數:49.86坪
格局:3房
房仲推薦
本網站保留一切權利,非經正式書面同意,禁止轉貼節錄。
資料處理中,請稍後...
請注意:此案件已下架