2年詠勝市中欣A7體育大學樂善一路289號4樓

法拍屋,法拍屋代標,法拍屋出售
桃園廠房,桃園廠房出租,桃園工業地
A7站,2年新【詠勝市中欣】樂善一路289號4樓
列印
  • 售1634萬
    售1308萬
    1. 案號:114木39795乙
    2. 類型:法拍大樓
    3. 總登記坪數:36.65坪
    4. 每坪單價:35.69萬/坪
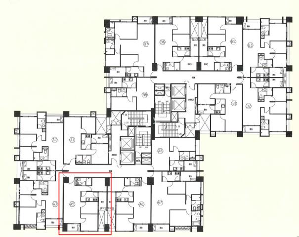
    5. 地址:桃園市龜山區樂善一路289號4樓
    1. (煩請告知聯絡人,您是在House-Info房屋網看到廣告,感恩幫忙)
    2. 0916-000-104
    1. 市話:
    2. 公司名稱:
    3. 公司地址:
    4. 個人網站:
    2年詠勝市中欣A7體育大學樂善一路289號4樓-QR CODE 留言 檢舉 加LINE好友
物件介紹
詳細資料
最後更新
2小時內
銷售狀態
待標中
格局
3房,2廳,1衛
社區/大樓
詠勝市中欣
屋齡
2年
車位
坡道平面
座向
朝西
無障礙環境
所在樓層
4/22
管理費
70元/坪
管委會
中庭
電梯
法拍件
本件是法拍屋
拍次
2
開標日期
114/12/24
法拍件
坪數說明
主建物坪數
16.98
附屬建物坪數
2.23
公共設施坪數
9.46
停車位坪數
7.98
土地登記總坪數
2.85
特色描述
貸款才是決勝點,提供預審,保證核貸
千萬經理人,接任台灣不動產拍賣協會監事

◆門牌:樂善一路289號4樓
◆主建物:16.98坪
◆附屬:2.23坪
◆公設:9.46坪
◆車位:7.98坪
【1車║坡平式║編號B3-155】
◆土地:2.85坪
◆土地現值:【中心商業區■114年公告現值:135000元/㎡】
◆房屋用途:集合住宅
◆房屋樓層:所在4樓/總樓層22樓
◆房屋朝向:朝西
◆管理費用:70元/坪

【案件特色】
◎房屋格局:3房/2廳/1衛(此格局為原建設規劃或內政部實價登錄,僅供參考,以現況為準!)
◎交通動線:位於樂善一路,鄰近文化一路與主要幹道,開車或騎車出入都方便
◎捷運站:開車約5分鐘可達A7捷運站
◎生活機能:臨近A7重劃區與林口長庚商圈、周邊有全聯、7-11、全家、寶雅、85度C及各式餐飲小吃,採買、外食都超方便
◎學區資源:文青國小、樂善國小、大崗國中、國立體育大學綜合體育館
◎醫療設施:林口長庚醫院車程約8–10分鐘,醫療資源充足

【社區簡介】
◎基地面積:926坪
◎總戶數:296戶
◎車位數量:298
◎建設公司:詠勝開發
◎建築設計:新森峰建築師事務所
◎營造公司:詠勝開發營造
◎企劃銷售:君漾廣告
◎公共設施:接待大廳、空中花園、交誼廳、會議室、閱覽室、健身房、親子遊戲區、信箱區、曬被區

【法院筆錄】●點交情形→不點交●
1‧本件標的建物查封時債務人在場,屋內髒亂,無水無電,據大樓管理人員表示尚未交屋,有停車位。另據債權人查報稱本件標的建物目前由建商詠勝開發有限公司占用中,停車位在地下三樓。惟本件標的物實際使用狀況,仍請投標人應自行至現場查明瞭解後俾決定是否應買。
2‧本件係變價共有物拍賣程序,依據民法第824條第7項規定,共有人有優先承買權,若共有人之一到場應買拍得,則其餘共有人無優先承買權。如共有人主張優先承買權並繳足價金後,原應買人所繳納之保證金無息退還。《分割遺產》

※無人買受時,酌減20%估算,概以執行單位公告為準
第一拍11/26底標價:1634萬
第二拍12/24底標價:1308萬
第三拍未定底標價:1046萬

王牌經理人,十六年以上法拍經驗豐富
眼光最精準,代標多筆億元以上的案件
在地最深耕,資源豐富廣闊人脈執行力
協助自用者,找到理想實用的房屋圓夢
幫助投資人,創造物件最高投資報酬率
最專業團隊,讓您案件事半功倍又圓滿

【在地深耕,眼光精準,人脈廣闊】
■產權清楚、案件評估、排除瑕疵事故
■全程負責、快速交屋、拍後不被騷擾
■代墊利率6.3%、額度8成、手續費0.3%
■房貸利率2.65%、免排隊、立即撥款
■法拍屋代墊款、需要資金、歡迎找我

104法拍網|透明房訊|全國最大
◆規模最大◈歷史最久◆
全國七處分公司,300多位編制人員
成立於1986年,全國16家法院駐點
◆專業最強◈全國唯一◆
全國超過1800場授課專業講習
100坪倉庫,造冊拍賣遺留物
◆正派經營◈開立發票◆
營業員(99)登159091號
經紀人(96)年北市經證字01243號
一零四法拍網(股),統編28306523

能看屋的,網頁會註明。一般法拍屋查封之後無法入內參觀,可依據建物平面圖推斷室內格局是否方正,或參考樓上樓下鄰居房屋。(預約看屋留言,一律不回)
物件照片
桃園龜山大樓法拍-0
桃園龜山大樓法拍-0
桃園龜山大樓法拍-1
桃園龜山大樓法拍-1
桃園龜山大樓法拍-2
桃園龜山大樓法拍-2
桃園龜山大樓法拍-3
桃園龜山大樓法拍-3
桃園龜山大樓法拍-4
桃園龜山大樓法拍-4
桃園龜山大樓法拍-5
桃園龜山大樓法拍-5
桃園龜山大樓法拍-6
桃園龜山大樓法拍-6
桃園龜山大樓法拍-7
桃園龜山大樓法拍-7
桃園龜山大樓法拍-8
桃園龜山大樓法拍-8
桃園龜山大樓法拍-9
桃園龜山大樓法拍-9
桃園龜山大樓法拍-10
桃園龜山大樓法拍-10
贊助商廣告
大桃園廠房,大桃園工業地,大桃園工業地廠房
桃園廠房出租,桃園工業地,桃園廠房工業地
物件留言
請注意,如果您詢問的內容與物件不相符合或是廣告,經過審核,系統將會直接刪除您的發問內容
等待圖示
檢舉不實
等待圖示
黃金曝光
本網站保留一切權利,非經正式書面同意,禁止轉貼節錄。