淡水區淡金路公寓四樓近淡海新市鎮
首頁
│
法拍屋導覽
│
法拍地導覽
│
房仲導覽
│
House-Info房屋網
│
889house.info
│
申請房仲網站
07-7963288
客服電話
首頁
台北
新北
基隆
桃園
新竹
苗栗
台中
彰化
南投
雲林
嘉義
台南
高雄
屏東
台東
宜蘭
花蓮
澎湖
金門
現在位置:
首頁
›
新北法拍屋
›
淡水法拍屋
›
淡水區淡金路公寓四樓近淡海新市鎮-新北市淡水區淡金路三段46巷22號4樓
售
淡水區淡金路|公寓四樓|近淡海新市鎮
列印
售426萬
案號:
113高104448 114/10/23 (四) 10:30
類型:
法拍公寓
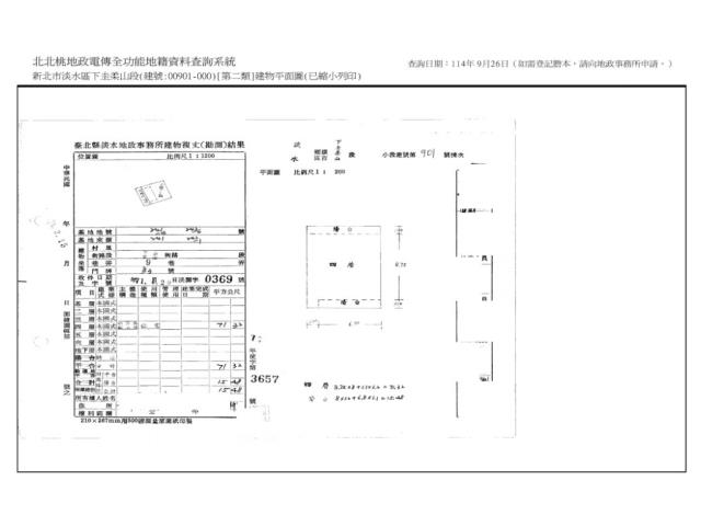
總登記坪數:
26.25坪
每坪單價:
16.23萬/坪
地址:
新北市淡水區淡金路三段46巷22號4樓
小顏
(煩請告知聯絡人,您是在House-Info房屋網看到廣告,感恩幫忙)
0911-965-339
淡水區-淡水區淡金路公寓四樓近淡海新市鎮
公司名稱:
鑫創資產管理有限公司
公司地址:
新北市新莊區中環路二段423號一樓
個人網站:
www.1314home.tw
留言
檢舉
物件介紹
詳細資料
最後更新
:
14天前
銷售狀態
:
待標中
屋齡
:
44年
車位
:
沒有車位
無障礙環境
:
沒有
所在樓層
:
4樓/共4樓
管委會
:
沒有
中庭
:
沒有
電梯
:
沒有
邊間
:
不是
法拍件
:
本件是法拍屋
拍次
:
第1拍 點交
開標日期
:
2025/10/23 (四) 10:30
法拍件
:
周邊環境
鄰近地標
:
近淡海新市鎮
坪數說明
建物登記總坪數
:
26.25
主建物坪數
:
21.57
附屬建物坪數
:
4.68
土地登記總坪數
:
10.4
特色描述
【法院筆錄內容】
1‧901建號拍定後點交。
2‧民國114年2月17日現場執行時,經開鎖入內檢視為空屋,已斷水斷電,四周牆面因嚴重漏水均已剝落,天花板及樑柱有部分鋼筋裸露情形。拍賣標的經查相關主管機關後,並無發生非自然死亡情形,亦無發生過火災事件,亦非屬列管之海砂屋、地震受損屋。依強制執行法第113條準用第69條之規定,拍賣物買受人就物之瑕疵無擔保請求權,不得於拍定後主張,請應買人留意。惟現在實際情形如何,仍請應買人自行查明注意。
3‧投標人應自行查明債務人有無積欠管理費,並注意拍定後民法第826條之1第3項規定之適用問題。
《拍賣抵押物》
【保證金】
85.2萬
【拍賣履歴】
一拍2025/10/23底標價格426萬
二拍底標價格340.8萬
三拍底標價格272.6萬
四拍底標價格218.1萬
【焦點法拍履歴】
👩🏻⚖️從業二十年以上經驗|競競業業|正派經營
🎯投標準備⇥法拍流程說明|標單填寫|案件現場勘查有無特殊情事|成本評估分析
💰銀行貸款⇥法拍物件估價|投標人財力評估|銀行代墊款協助辦理|最高八成
🏡拍定得標⇥強制執行書狀、履勘陳報書狀往返|債務人搬遷協商|遺留物造冊查估
🎁委託代標⇥免費|委託代標未得標⇥免費
🏢鑫創資產管理有限公司
顏麗杏0911-965339營業員證號:(101)登字第212862號
連真甄0909-031993營業員證號:(101)登字第192002號
更多物件☞焦點法拍
經紀人李彥槿:109北市經證字第02110號
物件照片
淡水公寓法拍-0
淡水公寓法拍-1
淡水公寓法拍-2
淡水公寓法拍-3
淡水公寓法拍-4
淡水公寓法拍-5
淡水公寓法拍-6
淡水公寓法拍-7
淡水公寓法拍-8
淡水公寓法拍-9
淡水公寓法拍-10
物件地圖
淡水區淡金路公寓四樓近淡海新市鎮
淡水區淡金路公寓四樓近淡海新市鎮
到Google查看地圖
到Google查看街景
贊助商廣告
物件留言
請注意,如果您詢問的內容與物件不相符合或是廣告,經過審核,系統將會直接刪除您的發問內容
檢舉不實
黃金曝光
新店
售768萬
新北新店安民街365巷10弄5號4樓
類型:公寓
坪數:39.29坪
新店
售1530萬
新北新店竹林路2巷19號1樓
類型:公寓
坪數:43.41坪
鶯歌
售410萬
新北鶯歌育才街88號5樓
類型:公寓
坪數:32.59坪
格局:3房
泰山
售1168萬
新北泰山明志路一段466巷21號3樓公寓,法拍屋代標 專線0913-303663 +LINE
類型:公寓_泰山高中生活圈
坪數:31.42坪
格局:3房
淡水
售937萬
新北淡水民權路187巷15號5樓
類型:公寓
坪數:41.73坪
格局:3房
新店
售1224萬
新北新店竹林路2巷19號1樓
類型:公寓_一樓_夾層
坪數:43.41坪
房仲推薦
本網站保留一切權利,非經正式書面同意,禁止轉貼節錄。
資料處理中,請稍後...
請注意:此案件已下架