淡水區八勢路一段詩畫城堡別墅近捷運紅樹林站中山市場
首頁
│
法拍屋導覽
│
法拍地導覽
│
房仲導覽
│
House-Info房屋網
│
889house.info
│
申請房仲網站
07-7963288
客服電話
首頁
台北
新北
基隆
桃園
新竹
苗栗
台中
彰化
南投
雲林
嘉義
台南
高雄
屏東
台東
宜蘭
花蓮
澎湖
金門
現在位置:
首頁
›
新北法拍屋
›
淡水法拍屋
›
淡水區八勢路一段詩畫城堡別墅近捷運紅樹林站中山市場-新北市淡水區八勢路一段174號5層樓
售
淡水區八勢路一段【詩畫城堡別墅】近捷運紅樹林站、中山市場
列印
售1544萬
售1236萬
案號:
112快81781 115/02/05(四)14:30
類型:
法拍透天
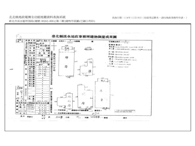
總登記坪數:
93.72坪
每坪單價:
13.19萬/坪
地址:
新北市淡水區八勢路一段174號5層樓
小顏
(煩請告知聯絡人,您是在House-Info房屋網看到廣告,感恩幫忙)
0911-965-339
新北-淡水區八勢路一段詩畫城堡別墅近捷運紅樹林站中山市場
公司名稱:
鑫創資產管理有限公司
公司地址:
新北市新莊區中環路二段423號一樓
個人網站:
www.1314home.tw
留言
檢舉
物件介紹
詳細資料
最後更新
:
21小時內
銷售狀態
:
待標中
社區/大樓
:
詩畫城堡別墅區
屋齡
:
34年
無障礙環境
:
沒有
所在樓層
:
1~5樓/共5樓
管委會
:
有
中庭
:
沒有
電梯
:
沒有
邊間
:
不是
法拍件
:
本件是法拍屋
拍次
:
第3拍 點交
開標日期
:
2026/02/05(四) 14:30
法拍件
:
周邊環境
鄰近地標
:
近捷運紅樹林站、中山市場
捷運站
:
紅樹林
坪數說明
建物登記總坪數
:
93.72
主建物坪數
:
76.25
附屬建物坪數
:
10.92
公共設施坪數
:
6.55
土地登記總坪數
:
81.73
特色描述
【法院筆錄內容】
1‧262建號拍定後點交。
2‧民國113年7月15日現場調查時,發現262建號後門未關,經入內檢視為空屋,無人居住使用,頂樓遮陽板有破裂情形。依強制執行法第113條準用第69條之規定,拍賣物買受人就物之瑕疵無擔保請求權,不得於拍定後主張,請應買人留意。惟現在實際情形如何,仍請應買人自行查明注意。
3‧投標人應自行查明債務人有無積欠管理費,並注意拍定後民法第826條之1第3項規定之適用問題。
《拍賣抵押物》
【保證金】
247.2萬
【拍賣履歴】
一拍2025/12/11流標底標價格1929萬
二拍2026/01/08停拍底標價格1544萬
三拍2026/02/05底標價格1236萬
四拍底標價格987.7萬
【焦點法拍履歴】
👩🏻⚖️從業二十年以上經驗|競競業業|正派經營
🎯投標準備⇥法拍流程說明|標單填寫|案件現場勘查有無特殊情事|成本評估分析
💰銀行貸款⇥法拍物件估價|投標人財力評估|銀行代墊款協助辦理|最高八成
🏡拍定得標⇥強制執行書狀、履勘陳報書狀往返|債務人搬遷協商|遺留物造冊查估
🎁委託代標⇥免費|委託代標未得標⇥免費
🏢鑫創資產管理有限公司
顏麗杏0911-965339營業員證號:(101)登字第212862號
連真甄0909-031993營業員證號:(101)登字第192002號
更多物件☞焦點法拍
經紀人李彥槿:109北市經證字第02110號
物件照片
新北淡水法拍透天-0
新北淡水法拍透天-1
新北淡水法拍透天-2
新北淡水法拍透天-3
新北淡水法拍透天-4
物件地圖
淡水區八勢路一段詩畫城堡別墅近捷運紅樹林站中山市場
淡水區八勢路一段詩畫城堡別墅近捷運紅樹林站中山市場
到Google查看地圖
到Google查看街景
贊助商廣告
物件留言
請注意,如果您詢問的內容與物件不相符合或是廣告,經過審核,系統將會直接刪除您的發問內容
檢舉不實
黃金曝光
新店
售2336萬1000元
新北新店三民路159巷19弄16號3層樓
類型:透天
坪數:37.05坪
中和
售2429萬
新北中和連城路523巷11弄2號
類型:透天
坪數:74.57坪
汐止
售1548萬
新北汐止忠三街10巷37弄4號
類型:透天_別墅
坪數:107.44坪
淡水
售1236萬
新北淡水八勢路一段174號
類型:透天_別墅_一樓
坪數:93.72坪
格局:6房
房仲推薦
本網站保留一切權利,非經正式書面同意,禁止轉貼節錄。
資料處理中,請稍後...
請注意:此案件已下架