板橋區民生路天生贏家近捷運板新站民生公園興隆市場
首頁
│
法拍屋導覽
│
法拍地導覽
│
房仲導覽
│
House-Info房屋網
│
889house.info
│
申請房仲網站
07-7963288
客服電話
首頁
台北
新北
基隆
桃園
新竹
苗栗
台中
彰化
南投
雲林
嘉義
台南
高雄
屏東
台東
宜蘭
花蓮
澎湖
金門
現在位置:
首頁
›
新北法拍屋
›
板橋法拍屋
›
板橋區民生路天生贏家近捷運板新站民生公園興隆市場-新北市板橋區民生路二段8-3號11樓
售
板橋區民生路【天生贏家】近捷運板新站、民生公園、興隆市場
列印
售2240萬
案號:
115職四5金115/02/25(三)10:30流標
類型:
法拍大樓
總登記坪數:
35.81坪
每坪單價:
62.55萬/坪
地址:
新北市板橋區民生路二段8-3號11樓
小顏
(煩請告知聯絡人,您是在House-Info房屋網看到廣告,感恩幫忙)
0911-965-339
新北-板橋區民生路天生贏家近捷運板新站民生公園興隆市場
公司名稱:
鑫創資產管理有限公司
公司地址:
新北市新莊區中環路二段423號一樓
個人網站:
www.1314home.tw
留言
檢舉
物件介紹
詳細資料
最後更新
:
8小時內
銷售狀態
:
議價中
社區/大樓
:
天生贏家(宏巨建設)
屋齡
:
29年
無障礙環境
:
有
所在樓層
:
11樓/共24樓
管委會
:
有
中庭
:
有
電梯
:
有
法拍件
:
本件是法拍屋
拍次
:
第1拍 部份點交
開標日期
:
2026/02/25(三)10:30 流標
法拍件
:
周邊環境
鄰近地標
:
近捷運板新站、民生公園、興隆市場、光仁高中、64快、新北市政府、大遠百
捷運站
:
板新
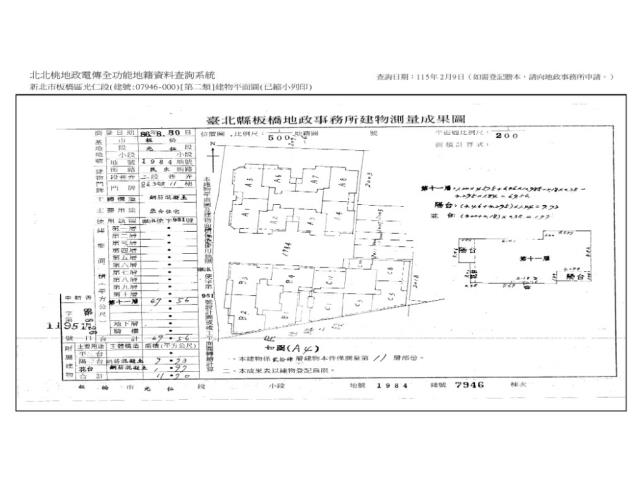
坪數說明
建物登記總坪數
:
35.81
主建物坪數
:
21.04
附屬建物坪數
:
3.54
公共設施坪數
:
2.04
停車位坪數
:
9.19
土地登記總坪數
:
1.93
特色描述
【法院筆錄內容】
1‧本件標的於法院查封時,由共有人(即債務人)之一及其兒子在內,並表示為自住,拍定後點交;另據該共有人之兒子表示,目前位於地下2樓6號停車位由其使用,惟本件停車位係共同使用部分建物之所有權應有部分,應由全體區分所有權人協議使用分管方法,應買人應自行向管委會查明區分所有權人分管契約或公寓大廈規約等,拍定後仍不點交,請應買人特別注意。
2‧本件拍賣標的之共有人有優先承買權,拍定後需調查優先承買人是否優先承買,有時耗時甚久(數月至數年不等),於確定前均不退還所繳保證金及價金,請投標人或應買人勘酌,並待優先承買權確定後,法院另行通知拍定人再行繳納剩餘價金後(勿先行繳納),法院始依法核發權利移轉證書,請投標人或應買人特別注意。
3‧經查詢相關機關,本件標的經初步調查無海砂屋、輻射屋、地震受創、火災受損及發生非自然死亡等情形。又依鑑定報告稱,該標的之土地為住宅區。惟因調查限度難以查明,相關調查結果及使用限制請投標人自行向主管機關查明並評估衡量,綜合考量相關風險再行投標。拍定後,債權人、債務人、拍定人或其他關係人,均不得以法院就上開事由所載使用情形不明或未盡調查能事等理由,請求增減價金或聲請撤銷拍賣。
4‧刊登於新聞紙之公告、法院郵寄之通知、網路公告或以其他方式或管道標示之內容,如與法院公告欄張貼之公告內容不符時,一律以法院公告欄張貼之拍賣公告內容為準。
5‧本件拍賣標的之原所有權人或使用人如有積欠工程受益費、水電費、瓦斯費、管理費等費用,應由拍定人自行查明後與相關單位洽商解決。
6‧為維護交易秩序,保障當事人合理權益:(1)若有停止、撤回、撤銷、延緩強制執行之事由,而其事由確實發生於本案標的拍定日或拍定日前,縱已拍定,法院亦得撤銷拍定,無息返還已經繳交之款項,應買人、拍定人、債權人、債務人均不得異議,不同意之應買人請勿參與本案投標,請另行透過其他方式或管道購買不動產。(2)因虛偽、未據實、及時陳述及提供資料、隱匿資料、偽造文書、詐欺等故意或過失行為(均包括口頭說明及書面文件),致新北地院及所屬承辦人員,受有損害賠償之請求,債權人、債務人應對新北地院及其所屬承辦人員所受之損害,負擔賠償責任。(3)拍定人持法院核發之權利移轉證書,若有無法辦理拍賣標的所有權移轉登記之情形,得由法院撤銷拍定,無息退還拍定人繳交款項,應買人、拍定人、債權人、債務人均不得異議,不同意之應買人請勿參與投標,請另行透過其他方式或管道購買不動產。
7‧本拍賣公告所載不動產面積,係以查封時之謄本為依據,如地政機關於查封後實施重測,則其面積應以重測結果為準。經拍定後,債權人、債務人、拍定人或其他關係人,均不得以重測後面積與公告不符,聲請增減價金或撤銷拍賣。
《新北地方法院案號:114年度司執火字第88208號,分割遺產》
【保證金】
448萬
【拍賣履歴】
一拍2026/02/25流標底標價格2240萬
二拍底標價格1792萬
三拍底標價格1433.6萬
四拍底標價格1146.9萬
【焦點法拍履歴】
👩🏻⚖️從業二十年以上經驗|競競業業|正派經營
🎯投標準備⇥法拍流程說明|標單填寫|案件現場勘查有無特殊情事|成本評估分析
💰銀行貸款⇥法拍物件估價|投標人財力評估|銀行代墊款協助辦理|最高八成
🏡拍定得標⇥強制執行書狀、履勘陳報書狀往返|債務人搬遷協商|遺留物造冊查估
🎁委託代標⇥免費|委託代標未得標⇥免費
🏢鑫創資產管理有限公司
顏麗杏0911-965339營業員證號:(101)登字第212862號
連真甄0909-031993營業員證號:(101)登字第192002號
更多物件☞焦點法拍
經紀人李彥槿:109北市經證字第02110號
物件照片
新北法拍大樓-0
新北法拍大樓-1
新北法拍大樓-2
新北法拍大樓-3
新北法拍大樓-4
新北法拍大樓-5
新北法拍大樓-6
新北法拍大樓-7
新北法拍大樓-8
新北法拍大樓-9
新北法拍大樓-10
物件地圖
板橋區民生路天生贏家近捷運板新站民生公園興隆市場
板橋區民生路天生贏家近捷運板新站民生公園興隆市場
到Google查看地圖
到Google查看街景
贊助商廣告
物件留言
請注意,如果您詢問的內容與物件不相符合或是廣告,經過審核,系統將會直接刪除您的發問內容
檢舉不實
黃金曝光
三重
售1666萬4000元
新北三重龍濱路3-1號1樓<19>
類型:大樓_一樓
坪數:36.8坪
樹林
售1012萬
新北樹林八德街275號2樓◆丘先生 0906-901-097
類型:大樓
坪數:30.08坪
中和
售1588萬
新北中和復興路268號3樓-2,法拍屋代標 專線0913-303663 +LINE
類型:大樓_中和地政事務所
坪數:45.82坪
格局:3房
板橋
售948萬
新北板橋中山路二段359號5樓,法拍屋代標 專線0913-303663 +LINE
類型:大樓_辦公室_光仁高中生活圈
坪數:30.78坪
房仲推薦
本網站保留一切權利,非經正式書面同意,禁止轉貼節錄。
資料處理中,請稍後...
請注意:此案件已下架