新莊區新北大道四段富御匯店住大樓

法拍屋,法拍屋代標,法拍屋出售
新莊區新北大道四段【 富御匯】店住大樓
列印
  • 售4871萬
    1. 案號:114職一406金
    2. 類型:法拍大樓
    3. 總登記坪數:128.29坪
    4. 每坪單價:37.97萬/坪
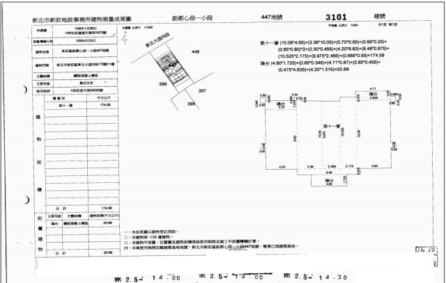
    5. 地址:新北市新莊區新北大道四段173號11樓<14>
    1. (煩請告知聯絡人,您是在House-Info房屋網看到廣告,感恩幫忙)
    2. 0986-508-652
    1. 市話:
    2. 公司名稱:
    3. 公司地址:
    4. 個人網站:
    新莊區新北大道四段富御匯店住大樓-QR CODE 留言 檢舉 加LINE好友
物件介紹
詳細資料
最後更新
3小時內
銷售狀態
待標中
社區/大樓
富御匯
屋齡
10年
車位
含停車位編號11、49
所在樓層
11樓/共14樓
電梯
未知
法拍件
本件是法拍屋
拍次
第二拍
開標日期
115/3/4(三)
法拍件
周邊環境
生活機能
副都心重劃區,捷運機場線A4新莊副都心站正對面,距行政院新莊聯合辦公大樓步行約5分鐘、國家電影及視聽文化中心步行約8分鐘
坪數說明
建物登記總坪數
128.29
主建物坪數
52.81
附屬建物坪數
6.26
公共設施坪數
34.11
停車位坪數
35.11
特色描述

▲拍賣公告:金服公司
▲拍賣標的物:新北市新莊區新北大道四段173號11樓<14>
▲【謄本資料】:總坪數128.29坪主建坪52.81坪,附屬坪6.26坪,停車坪35.11坪,公設坪34.11坪
▲【法院筆錄】:民國114年6月17日現場執行時,債務人不在場據警局函復稱為債務人及其家屬自行使用
建號拍定後點交
▲【生活機能】:中信國小
▲【拍次說明】:
標售拍次(目前拍次底價):
第一拍底價:6089萬
第二拍底價:4871萬
第三拍底價:
拍賣日期:115/3/4(三)
▲台北∣新北∣桃園∣新竹
★Houseinfo:http://www.xn--ogt54mdnjqrqpix.tw/
▲【代標服務】
<過濾案件>追蹤拍賣日期...
<評估案件>投標全場陪同及標價最後建議...
<包辦交屋>與法院協商現住人交屋事項...
<代墊尾款>辦理銀行代墊及投標尾款手續...

※此案件為法拍屋無法看屋,實際狀況以法院筆錄為主。
詳細資訊了解請撥李小姐(02)8260-2416|0986-508652
財欣不動產管理顧份有限公司【統一編號】28306523
物件照片
新北新莊法拍大樓-0
新北新莊法拍大樓-0
新北新莊法拍大樓-1
新北新莊法拍大樓-1
新北新莊法拍大樓-2
新北新莊法拍大樓-2
新北新莊法拍大樓-3
新北新莊法拍大樓-3
新北新莊法拍大樓-4
新北新莊法拍大樓-4
贊助商廣告
物件留言
請注意,如果您詢問的內容與物件不相符合或是廣告,經過審核,系統將會直接刪除您的發問內容
等待圖示
檢舉不實
等待圖示
黃金曝光
本網站保留一切權利,非經正式書面同意,禁止轉貼節錄。