新北市汐止區大同路一段239號15樓

104法拍屋,新北法拍屋,台北法拍屋
透明房訊,台北104法拍,台北法拍屋
法拍屋,法拍屋代標,法拍屋出售
新北市汐止區大同路一段239號15樓【台灣科學園區】6車位
列印
  • 售9000萬
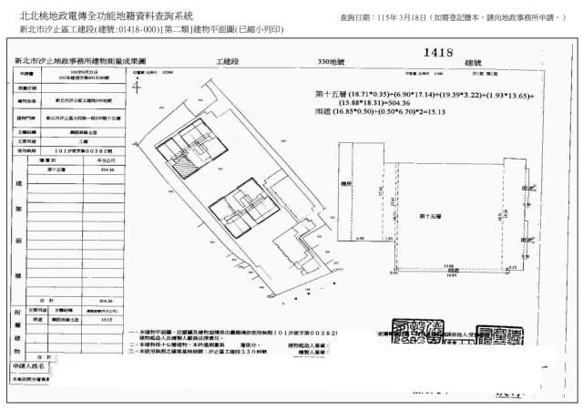
    1. 案號:114實94575
    2. 類型:法拍商辦
    3. 總坪數:289.56坪
    4. 每坪單價:31.08萬/坪
    5. 地址:新北市汐止區大同路一段239號15樓
    1. (煩請告知聯絡人,您是在House-Info房屋網看到廣告,感恩幫忙)
    2. 0980-758-080
    1. 市話:
    2. 公司名稱:
    3. 公司地址:
    4. 個人網站:
    新北市汐止區大同路一段239號15樓-QR CODE 留言 檢舉 加LINE好友
物件介紹
詳細資料
最後更新
2天前
銷售狀態
待標中
社區/大樓
台灣科學園區(德林建設)
屋齡
14年
所在樓層
15樓/共17樓
電梯
是否凶宅
不是
法拍件
本件是法拍屋
拍次
1
開標日期
115/04/22(三) 下午14:30
法拍件
坪數說明
建物登記總坪數
289.56
主建物坪數
289.56
公共設施坪數
95.89
停車位坪數
36.52
土地登記總坪數
50.42
特色描述
▌地址

新北市汐止區大同路一段239號15樓



▌公告內容

辦理法院|士林

案號|114實94575

拍賣時間|115/04/22(三)下午14:30

拍次|1拍

點交否|點交



▌拍賣情況

拍賣中



▌產權資料

社區名|台灣科學園區

類型|大樓

樓層|15/17

屋齡|14

權狀坪|289.56

室內坪|157.15

公設坪|95.89

土地坪|50.42

增建坪|

車位|6

車位坪|36.52



▌拍賣資料

拍賣底價|9000萬元

保證金|1800萬元

單價/坪|31.1萬元

標別|



▌預估拍次

一拍價格|9000.0萬元|26.5萬/坪

預估二拍|7200.0萬元|21.2萬/坪

預估三拍|5760.0萬元|17.0萬/坪

預估應買|5760.0萬元|17.0萬/坪

預估四拍|4608.0萬元|13.6萬/坪



▌法院筆錄

1‧1418建號拍定後點交。

2‧民國114年12月4日現場查封時,第三人即實質債務人立治科技股份有限公司之員工淩○惠在場,稱房屋部分出租星隼光學股份有限公司,部分放置立治科技股份有限公司及藍摩半導體股份有限公司之物品;第三人即星隼光學股份有限公司員工張○如在場稱係114年7月遷入,嗣陳報自114年6月1日起承租,惟所提出之租賃契約記載租賃期間係自114年12月1日起至117年5月31日止。另配賦之停車位編號285、286、287、299、300、301位於地下1樓,債務人陳報均已出租予第三人劉○世,租賃期間自114年10月1日至117年5月31日,並提出租賃契約為證。因上開租賃契約均係訂立於本件114年9月25日查封之後,不得對抗債權人,故建物拍定後點交。惟現在實際情形如何,仍請應買人自行查明注意。

3‧投標人應自行查明債務人有無積欠管理費,並注意拍定後民法第826條之1第3項規定之適用問題。

《拍賣抵押物》







法拍代標專家TORO|18年法拍屋經驗,專業代標、合法透明、成功率高

✅專欄人物-黃瑋諭

在法拍市場中,資訊不對稱、法律風險、投標策略失誤,往往讓投資人錯失良機,甚至承擔不必要的風險。

選擇一位真正專精法拍屋的代標專家,是成功關鍵。

TORO法拍代標|業界口碑第一的法拍屋專家

📮TORO(黃瑋諭),深耕法拍屋市場超過18年,專注於法拍交易、法拍屋投資與代標服務,累積豐富實戰經驗,並以「合法、透明、專業」著稱。

✅TOROESTATE創辦人

法拍屋教學教育資深講師👨‍🏫

多家媒體、網路專欄不動產分析專家📢

曾參與多件大型企業辦公室、豪宅、廠房之法拍代標案件🏢

不只協助投標,更替客戶控管風險,打造長期穩定的法拍投資策略👑

✅法拍代標實績|累積成交金額突破50億

法拍成交案件數:300+件

累積成交總金額:超過50億元

102年單店成交金額:17億

111年單店成交金額:30億

👉業績來自實力,口碑來自成果。

✅為什麼選擇TORO法拍代標?

✔專業法律顧問全程把關

配合專業律師團隊確保交易合法、安全降低潛在法律風險

✔法拍物件完整調查

產權結構、登記風險全面審查使用狀況、占用與點交可能性分析避免「買到不能住、不能用的法拍屋」

✔客製化投標策略

投標價格精準分析市場行情比對依現場狀況即時調整投標金額

✅TORO法拍代標完整流程

①委託前諮詢

法拍流程完整說明

成本、稅費、銀行貸款分析

投資風險與報酬評估

②委託後分析

預估得標價格

銀行鑑價與融資可行性

現場實地調查

③投標當日

全程陪同或代理投標

現場觀察投標人數

即時判斷投標策略

④成功得標後

銀行撥款與法院流程協助

點交程序與文件處理

協助排除占用、後續出租或轉售規劃

✅法拍代標收費方式(透明公開)

⭕️點交法拍屋:3%

⭕️不點交法拍屋:5%

❌️未得標:完全不收費

👉成功才收費,與客戶站在同一陣線。

✅投標當日必備文件

⭐️投標人身分證公司投標需附法人登記資料

⭐️投標人印章/法人大小章

⭐️投標保證金(拍賣底價20%)



✅台北/新北法拍投標地點與電話

台北地方法院

台北市博愛路131號

📞(02)2314-6871

新北地方法院

新北市土城區青雲路152號6樓

📞(02)2261-6714

士林地方法院

台北市內湖區民權東路六段91號

📞(02)2791-1521

台灣金服公司

台北市大安區忠孝東路四段300號10樓

📞(02)8771-1168

✅聯絡TORO|法拍代標諮詢專線

⭐️0980-758-080

👉一對一諮詢,協助你避開法拍陷阱,精準得標。

物件照片
汐止法拍商辦-0
汐止法拍商辦-0
汐止法拍商辦-1
汐止法拍商辦-1
贊助商廣告
桃園廠房,桃園廠房出租,桃園廠房出售
新北法拍屋,新北市法拍屋,新北法院法拍屋
物件留言
請注意,如果您詢問的內容與物件不相符合或是廣告,經過審核,系統將會直接刪除您的發問內容
等待圖示
檢舉不實
等待圖示
本網站保留一切權利,非經正式書面同意,禁止轉貼節錄。