崇善商圈崇善11街
首頁
│
法拍屋導覽
│
法拍地導覽
│
房仲導覽
│
House-Info房屋網
│
889house.info
│
申請房仲網站
07-7963288
客服電話
首頁
台北
新北
基隆
桃園
新竹
苗栗
台中
彰化
南投
雲林
嘉義
台南
高雄
屏東
台東
宜蘭
花蓮
澎湖
金門
現在位置:
首頁
›
台南法拍屋
›
東區法拍屋
›
崇善商圈崇善11街-台南市東區崇善11街
售
崇善商圈-孝親裝潢透天車庫,售1980萬
列印
售1980萬
案號:
4002
類型:
透天_別墅
總登記坪數:
33.39坪
每坪單價:
59.3萬/坪
地址:
台南市東區崇善11街
陳盈秀
(煩請告知聯絡人,您是在House-Info房屋網看到廣告,感恩幫忙)
0928-010-990
東區-崇善商圈崇善11街
市話:
0928010990 (LINE)
公司名稱:
誠昱不動產企業社(住商成大東興店)
公司地址:
台南市永康區小北路30號
個人網站:
www.台南秀秀房仲網.tw
留言
檢舉
物件介紹
詳細資料
最後更新
:
2小時內
銷售狀態
:
帶看中
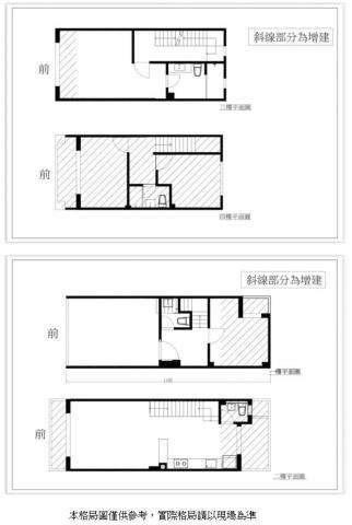
格局
:
4房,2廳,4衛,4陽台,1廚房
屋齡
:
46年
車位
:
室內車庫
無障礙環境
:
沒有
所在樓層
:
共4樓
管委會
:
沒有
中庭
:
沒有
電梯
:
沒有
面前道路
:
8米路
邊間
:
不是
是否凶宅
:
不是
法拍件
:
本件不是法拍
法拍件
:
周邊環境
鄰近學區
:
德高國小,崇明國中
坪數說明
建物登記總坪數
:
33.39
土地登記總坪數
:
17.84
特色描述
近崇善路-8米路
1.整棟重新整理+增建,實際使用
2.空間大幅提升,格局方正,動線佳
3.一樓孝親房+有天井+二樓延伸露台
4.屋內保有自然光,乾爽不潮溼
5.仁和商圈,生活機能完整,採買便利
6.崇善商圈近學區,外食方便,診所林立,生活便利滿分
物件照片
台南透天-0
台南透天-1
台南透天-2
台南透天-3
台南透天-4
台南透天-5
台南透天-6
台南透天-7
台南透天-8
台南透天-9
台南透天-10
台南透天-11
台南透天-12
台南透天-13
贊助商廣告
物件留言
請注意,如果您詢問的內容與物件不相符合或是廣告,經過審核,系統將會直接刪除您的發問內容
檢舉不實
相似物件
永康
售1888萬
台南永康中華二路
類型:透天
坪數:58.73坪
格局:10房
安南
售2110萬
台南安南安中路二段
類型:透天
坪數:80.67坪
格局:6房
善化
售1880萬
台南善化陽光二路
類型:透天
坪數:59.3坪
格局:4房
安南
售2110萬
台南安南台江安中邊間大坪數車墅台南培倫房屋土地王0931384262黃培倫的店鋪H。蝸牛居591房屋319房
類型:透天_別墅
坪數:80.676坪
格局:6房
房仲推薦
本網站保留一切權利,非經正式書面同意,禁止轉貼節錄。
資料處理中,請稍後...
請注意:此案件已下架