屏東市光復路
首頁
│
法拍屋導覽
│
法拍地導覽
│
房仲導覽
│
House-Info房屋網
│
889house.info
│
申請房仲網站
07-7963288
客服電話
首頁
台北
新北
基隆
桃園
新竹
苗栗
台中
彰化
南投
雲林
嘉義
台南
高雄
屏東
台東
宜蘭
花蓮
澎湖
金門
現在位置:
首頁
›
屏東法拍屋
›
屏東市法拍屋
›
屏東市光復路-屏東縣屏東市光復路
售
近大同國小屏東車站透天美宅2樓拍368萬
列印
售368萬
案號:
屏東市光復路
類型:
法拍透天_一樓
總登記坪數:
37.44坪
每坪單價:
9.83萬/坪
地址:
屏東縣屏東市光復路
蘇副理
(煩請告知聯絡人,您是在House-Info房屋網看到廣告,感恩幫忙)
0934-087-640
屏東市-屏東市光復路
市話:
0934087640
公司名稱:
一零四高欣仲介經紀有限公司
公司地址:
高雄市苓雅區海邊路65號9樓
個人網站:
www.南台灣法拍.tw
留言
檢舉
物件介紹
詳細資料
最後更新
:
10小時內
銷售狀態
:
待標中
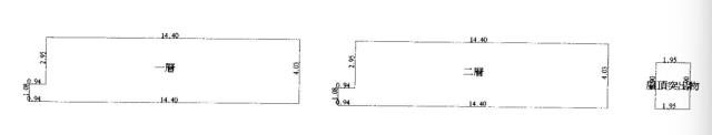
格局
:
3房,2廳,2衛,2陽台,1廚房
屋齡
:
50年
車位
:
一樓平面車位
所在樓層
:
共2樓
電梯
:
沒有
是否凶宅
:
不是
法拍件
:
本件是法拍屋
拍次
:
二拍
開標日期
:
3/18
法拍件
:
坪數說明
建物登記總坪數
:
37.44
主建物坪數
:
37.44
土地登記總坪數
:
35.70
物件照片
屏東市透天法拍-0
屏東市透天法拍-1
屏東市透天法拍-2
屏東市透天法拍-3
屏東市透天法拍-4
屏東市透天法拍-5
屏東市透天法拍-6
屏東市透天法拍-7
贊助商廣告
物件留言
請注意,如果您詢問的內容與物件不相符合或是廣告,經過審核,系統將會直接刪除您的發問內容
檢舉不實
相似物件
屏東市
售353萬
屏東屏東市民族路519之1號
類型:透天_店面
坪數:41坪
潮州
售353萬
屏東潮州彭城路224巷2號
類型:透天
坪數:25坪
格局:3房
屏東市
售353萬
屏東屏東市民族路519之1號
類型:透天
坪數:41.17坪
東港
售376萬
屏東東港鎮海路1之43號
類型:透天
坪數:30坪
格局:4房
房仲推薦
本網站保留一切權利,非經正式書面同意,禁止轉貼節錄。
資料處理中,請稍後...
請注意:此案件已下架