台南市大樓套房透天別墅店面店住投資廠房廠辦套房電梯車墅
首頁
│
法拍屋導覽
│
法拍地導覽
│
房仲導覽
│
House-Info房屋網
│
889house.info
│
申請房仲網站
07-7963288
客服電話
首頁
台北
新北
基隆
桃園
新竹
苗栗
台中
彰化
南投
雲林
嘉義
台南
高雄
屏東
台東
宜蘭
花蓮
澎湖
金門
現在位置:
首頁
›
台南法拍屋
›
新營法拍屋
›
台南市大樓套房透天別墅店面店住投資廠房廠辦套房電梯車墅-台南市新營區新營區太子路
售
新營市區全新獨院車墅-2
列印
售1885萬
案號:
FS199738
類型:
透天
總登記坪數:
57.25坪
每坪單價:
32.93萬/坪
地址:
台南市新營區新營區太子路
梁素美
(煩請告知聯絡人,您是在House-Info房屋網看到廣告,感恩幫忙)
0921-873-309
新營區-台南市大樓套房透天別墅店面店住投資廠房廠辦套房電梯車墅
市話:
0921873309-梁素美
公司名稱:
梁素美台南房屋網
公司地址:
台南市永康區中華路376號
個人網站:
www.0921873309.tw
留言
檢舉
物件介紹
詳細資料
最後更新
:
5小時內
銷售狀態
:
帶看中
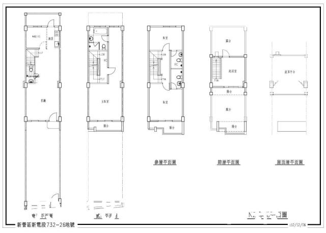
格局
:
4房,2廳,4衛,2陽台,1廚房
屋齡
:
1年
座向
:
朝西北
所在樓層
:
共4樓
電梯
:
沒有
是否凶宅
:
不是
法拍件
:
本件不是法拍
法拍件
:
坪數說明
土地登記總坪數
:
31.63
特色描述
‧位公園綠帶旁.近市中心.生活便利
‧穩固抗震基樁.保障安全
‧近南新國中.新營高中優良完整學區
‧可前後雙車.2樓整層主臥間間套房
‧4F前後大露臺好利用
物件照片
台南新營透天-0
台南新營透天-1
台南新營透天-2
台南新營透天-3
台南新營透天-4
台南新營透天-5
台南新營透天-6
台南新營透天-7
台南新營透天-8
台南新營透天-9
台南新營透天-10
台南新營透天-11
台南新營透天-12
台南新營透天-13
贊助商廣告
物件留言
請注意,如果您詢問的內容與物件不相符合或是廣告,經過審核,系統將會直接刪除您的發問內容
檢舉不實
黃金曝光
北區
售888萬
台南北區南園街
類型:透天
坪數:25.25坪
格局:6房
永康
售1838萬
台南永康富強路一段
類型:透天
坪數:68.8坪
格局:5房
房仲推薦
本網站保留一切權利,非經正式書面同意,禁止轉貼節錄。
資料處理中,請稍後...
請注意:此案件已下架