南港區東新街公寓二樓松山車站南港運動中心
首頁
│
法拍屋導覽
│
法拍地導覽
│
房仲導覽
│
House-Info房屋網
│
889house.info
│
申請房仲網站
07-7963288
客服電話
首頁
台北
新北
基隆
桃園
新竹
苗栗
台中
彰化
南投
雲林
嘉義
台南
高雄
屏東
台東
宜蘭
花蓮
澎湖
金門
現在位置:
首頁
›
台北法拍屋
›
南港法拍屋
›
南港區東新街公寓二樓松山車站南港運動中心-台北市南港區東新街8-5號2樓
售
南港區 東新街 公寓二樓 松山車站 南港運動中心
列印
售1487萬
案號:
114勇85762 115/04/09(四) 14:30
類型:
法拍公寓
總登記坪數:
27.52坪
每坪單價:
54.03萬/坪
地址:
台北市南港區東新街8-5號2樓
小顏
(煩請告知聯絡人,您是在House-Info房屋網看到廣告,感恩幫忙)
0911-965-339
南港區-南港區東新街公寓二樓松山車站南港運動中心
公司名稱:
鑫創資產管理有限公司
公司地址:
新北市新莊區中環路二段423號一樓
個人網站:
www.1314home.tw
留言
檢舉
物件介紹
詳細資料
最後更新
:
12小時內
銷售狀態
:
待標中
屋齡
:
46年
車位
:
沒有車位
無障礙環境
:
沒有
所在樓層
:
2樓/共5樓
管委會
:
沒有
中庭
:
沒有
電梯
:
沒有
是否凶宅
:
不是
法拍件
:
本件是法拍屋
拍次
:
第一拍 部份點交
開標日期
:
2026/04/09(四) 14:30
法拍件
:
周邊環境
捷運站
:
松山
坪數說明
建物登記總坪數
:
27.52
主建物坪數
:
25.11
附屬建物坪數
:
2.41
特色描述
【法院筆錄內容】
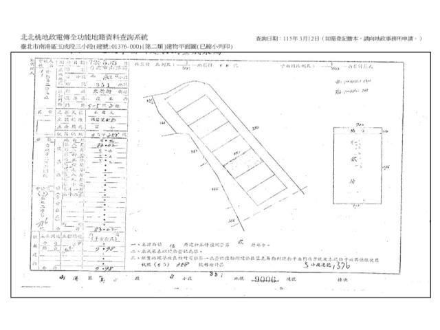
1‧1376建號建物拍定後點交。351地號土地拍賣不動產應有部分,拍定後不點交。
2‧114年9月22日現場查封時,1376建號建物,債務人在場稱由其本人及家屬作為倉庫使用。惟現在實際情形如何,仍請應買人自行查明注意。
3‧投標人應自行查明債務人有無積欠管理費,並注意拍定後民法第826條之1第3項規定之適用問題。
《拍賣抵押物》
【保證金】
297.4萬
【拍賣履歴】
一拍2026/04/09底標價格1487萬
二拍底標價格1189.6萬
三拍底標價格951.7萬
四拍底標價格761.4萬
【焦點法拍履歴】
👩🏻⚖️從業二十年以上經驗|競競業業|正派經營
🎯投標準備⇥法拍流程說明|標單填寫|案件現場勘查有無特殊情事|成本評估分析
💰銀行貸款⇥法拍物件估價|投標人財力評估|銀行代墊款協助辦理|最高八成
🏡拍定得標⇥強制執行書狀、履勘陳報書狀往返|債務人搬遷協商|遺留物造冊查估
🎁委託代標⇥免費|委託代標未得標⇥免費
🏢鑫創資產管理有限公司
顏麗杏0911-965339營業員證號:(101)登字第212862號
連真甄0909-031993營業員證號:(101)登字第192002號
更多物件☞焦點法拍
經紀人李彥槿:109北市經證字第02110號
物件照片
台北南港公寓法拍-0
台北南港公寓法拍-1
台北南港公寓法拍-2
台北南港公寓法拍-3
台北南港公寓法拍-4
台北南港公寓法拍-5
台北南港公寓法拍-6
台北南港公寓法拍-7
物件地圖
南港區東新街公寓二樓松山車站南港運動中心
南港區東新街公寓二樓松山車站南港運動中心
到Google查看地圖
到Google查看街景
贊助商廣告
物件留言
請注意,如果您詢問的內容與物件不相符合或是廣告,經過審核,系統將會直接刪除您的發問內容
檢舉不實
黃金曝光
松山
售1693萬
台北松山光復南路66巷14號2樓
類型:公寓_法拍公寓
坪數:28.61坪
中正區
售3424萬
台北中正區牯嶺街66號1樓<5>
類型:公寓_店面_一樓
坪數:47.58坪
大同區
售1144萬
台北大同區延平北路二段247巷18-3號2樓
類型:公寓
坪數:25.31坪
松山
售2190萬6000元
台北松山寶清街30巷22號1樓<4>
類型:公寓_一樓
坪數:29.85坪
房仲推薦
本網站保留一切權利,非經正式書面同意,禁止轉貼節錄。
資料處理中,請稍後...
請注意:此案件已下架