健行大學龍岡路一段中原大學中壢火車站中壢華廈中壢大樓中壢買屋

104法拍屋,新北法拍屋,台北法拍屋
591廠房,591桃園廠房,桃園廠房
桃園廠房,桃園廠房出租,桃園工業地
健行大學【東興國中】景觀3房車位電梯華廈
列印
  • 售1298萬
    售1218萬
    1. 類型:大樓_華廈
    2. 總登記坪數:39.63坪
    3. 每坪單價:30.73萬/坪
    4. 地址:桃園市中壢區健行大學、東興國中、中壢火車站
    1. (煩請告知聯絡人,您是在House-Info房屋網看到廣告,感恩幫忙)
    2. 0926-179-771
    1. 市話:
    2. 公司名稱:
    3. 公司地址:
    4. 個人網站:
    健行大學龍岡路一段中原大學中壢火車站中壢華廈中壢大樓中壢買屋-QR CODE 留言 檢舉 加LINE好友
物件介紹
詳細資料
最後更新
153天前
銷售狀態
帶看中
格局
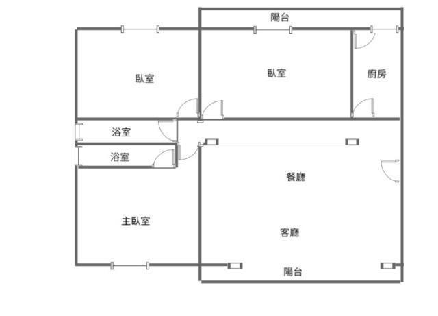
3房,2廳,2衛,2陽台,1廚房
屋齡
32年
公設比
約15%
車位
坡道式平面車位
座向
朝西南
無障礙環境
所在樓層
9樓/地上9層/地下1層
管理費
2377 元/月
管委會
中庭
電梯
300公尺內嫌惡設施
面前道路
約8米
邊間
不是
是否凶宅
不是
法拍件
本件不是法拍
法拍件
周邊環境
生活機能
和平市場、健行商圈、全聯福利中心、大潤發賣場、家樂福賣場、中原商圈
鄰近交通
龍岡路一段公車站、中壢火車站、中壢新屋交流道
鄰近地標
東興國中、中壢火車站
公園綠地
莒光公園
鄰近學區
信義國小,東興國中,中壢家商,中原大學,健行科技大學
坪數說明
建物登記總坪數
39.63
主建物坪數
26.27
附屬建物坪數
4.27
公共設施坪數
9.09
土地登記總坪數
8.61
特色描述

◇◆◇歡迎蒞臨◇◆◇更新最新房屋土地廠房資訊



◎建築完成日:83年08月0日



◎基地總面積:約691.21坪/持分8.61坪



◎社區總戶數:約96戶



◎社區公設比:約15%



1.【交通說明】:龍岡路一段公車站、中壢火車站、中壢新屋交流道



2.【購物說明】:和平市場、健行商圈、全聯福利中心、大潤發賣場、家樂福賣場、中原商圈



3.【訴求重點】:有景觀、客餐廳寬敞、室內30坪、前後陽台、衛浴皆有對外窗、低公設比、戶數單純96戶、一層2戶/1部電梯、天然瓦斯、步行皆可到國小國中大學、地點超級好、鄰近和平市場/家樂福賣場/全聯福利中心/信義國小/大潤發賣場/健行科技大學/莒光公園/中原商圈/中壢火車站/捷運A23中壢站(預定)/東興國中/林森國小/中壢體育園區等...、生活與交通極為方便~~~



4.【房屋座向】:客廳陽台→朝西南//房屋大門→朝//社區大門→朝西北



☆★☆看屋0926-179-771或LINEID:s0926179771【曾先生(宇生)】→告知物件→預約時間☆★☆



☆★☆即日起本廣告僅限貼文7日內有效,委託到期日及物件售出後此廣告自動作廢☆★☆

物件照片
桃園中壢大樓-0
桃園中壢大樓-0
桃園中壢大樓-1
桃園中壢大樓-1
桃園中壢大樓-2
桃園中壢大樓-2
桃園中壢大樓-3
桃園中壢大樓-3
桃園中壢大樓-4
桃園中壢大樓-4
桃園中壢大樓-5
桃園中壢大樓-5
桃園中壢大樓-6
桃園中壢大樓-6
桃園中壢大樓-7
桃園中壢大樓-7
桃園中壢大樓-8
桃園中壢大樓-8
桃園中壢大樓-9
桃園中壢大樓-9
桃園中壢大樓-10
桃園中壢大樓-10
桃園中壢大樓-11
桃園中壢大樓-11
桃園中壢大樓-12
桃園中壢大樓-12
桃園中壢大樓-13
桃園中壢大樓-13
贊助商廣告
大桃園廠房,大桃園工業地,大桃園工業地廠房
桃園廠房出租,桃園工業地,桃園廠房工業地
物件留言
請注意,如果您詢問的內容與物件不相符合或是廣告,經過審核,系統將會直接刪除您的發問內容
等待圖示
檢舉不實
等待圖示
相似物件
本網站保留一切權利,非經正式書面同意,禁止轉貼節錄。