台南市佳里區~電梯華廈~年年如意精緻三房平車
列印
  • 售880萬
    1. 案號:28443
    2. 類型:華廈
    3. 總登記坪數:33.11坪
    4. 每坪單價:26.58萬/坪
    5. 地址:台南市佳里區子龍三街
    1. (煩請告知聯絡人,您是在House-Info房屋網看到廣告,感恩幫忙)
    2. 0910-787-268
    1. 市話:
    2. 公司名稱:
    3. 公司地址:
    4. 個人網站:
    佳里三房平車-QR CODE 留言 檢舉
物件介紹
詳細資料
最後更新
31分鐘內
銷售狀態
帶看中
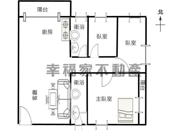
格局
3房,2廳,2衛,1陽台,1廚房
社區/大樓
年年如意(舜勳建設)
屋齡
3年
車位
一樓平面車位
座向
朝西南
無障礙環境
沒有
所在樓層
4樓/共5樓
管理費
900元/月
管委會
中庭
沒有
電梯
面前道路
6米
邊間
是否凶宅
不是
法拍件
本件不是法拍
法拍件
特色描述
【輕屋齡】【三房+平車】

【近麻豆交流道】【贈家具家電】

台南市佳里區【子龍三街】年年如意精緻三房平車

●委託價格:880萬

●建物面積:33.11坪

●室內面積:23.49坪

●建物樓層:4樓/共5樓

●室內格局:3房2廳2衛

●建築完工日:110年11月(約4年)



◎附贈冷氣、床組、熱水器,固定物不拆

◎簡約輕裝潢,前後採光,自住.出租兩相宜

◎近麻佳路,麻豆交流道,交通四通八達

◎佳里華廈,地點絕佳,把握機會,錯過可惜



!LINE好友人數已滿,歡迎直接來電詢問!

★合法經紀業者,通過國家考試及格特約代書★

★給您最誠信,經營,專業的服務,價錢實在★

★幸福聯賣,成交快速,保障交易,安全買賣★

★履約保證,詳細產權現況說明書,讓您放心★

★歡迎來電買屋.委託賣屋.土地.農地.工業地.廠房★



買屋搜尋【台南農地出售】【阿妙房屋0910-787-268】

台南房屋,台南不動產,台南電梯大樓,台南大樓,台南電梯華廈,台南公寓,台南廠房,

台南賣屋,台南透天,台南店面,台南別墅,​台南透天店面,台南透天別墅,台南買屋,

台南租屋,台南土地買賣,台南農地,台南建地,台南廠房,台南工業用地,高雄房屋,

高雄不動產,高雄電梯大樓,高雄大樓,高雄電梯華廈,高雄公寓,高雄房屋,高雄廠房,

高雄賣屋,高雄透天,高雄店面,高雄別墅,​高雄透天店面,高雄透天別墅,高雄買屋,

高雄租屋,高雄土地買賣,高雄農地,高雄建地,高雄廠房,高雄工業用地,高雄工業地

鴻運富不動產開發有限公司幸福家不動產安南店營業員證號(93)登字第040059號

*以上資料僅供參考,如有因誤繕,誤寫等記載錯誤事由,一律以謄本登記為準。

*上架資料僅於委託銷售契約期間內有效。若因契約期滿,

成交等情形而生無法銷售等事由者,請務必與承辦人員再次確認。



物件照片
佳里華廈-0
佳里華廈-0
佳里華廈-1
佳里華廈-1
佳里華廈-2
佳里華廈-2
佳里華廈-3
佳里華廈-3
佳里華廈-4
佳里華廈-4
佳里華廈-5
佳里華廈-5
佳里華廈-6
佳里華廈-6
佳里華廈-7
佳里華廈-7
佳里華廈-8
佳里華廈-8
佳里華廈-9
佳里華廈-9
佳里華廈-10
佳里華廈-10
佳里華廈-11
佳里華廈-11
佳里華廈-12
佳里華廈-12
佳里華廈-13
佳里華廈-13
佳里華廈-14
佳里華廈-14
贊助商廣告
買房,買屋,買房子
物件留言
請注意,如果您詢問的內容與物件不相符合或是廣告,經過審核,系統將會直接刪除您的發問內容
等待圖示
檢舉不實
等待圖示
黃金曝光
本網站保留一切權利,非經正式書面同意,禁止轉貼節錄。