中正區捷運東門站商圈法拍屋瀧園大樓附車位
首頁
│
法拍屋導覽
│
法拍地導覽
│
房仲導覽
│
House-Info房屋網
│
889house.info
│
申請房仲網站
07-7963288
客服電話
首頁
台北
新北
基隆
桃園
新竹
苗栗
台中
彰化
南投
雲林
嘉義
台南
高雄
屏東
台東
宜蘭
花蓮
澎湖
金門
現在位置:
首頁
›
台北法拍屋
›
中正區法拍屋
›
中正區捷運東門站商圈法拍屋瀧園大樓附車位-台北市中正區臨沂街59巷10號2樓附車位,法拍屋代標 專線0913-303663 +LINE
售
中正區臨沂街法拍屋|東門市場商圈大樓附車位
列印
售7660萬
案號:
一拍【114職一132金】
類型:
法拍大樓_台北星辰飯店
總登記坪數:
67.69坪
每坪單價:
113.16萬/坪
地址:
台北市中正區臨沂街59巷10號2樓附車位,法拍屋代標 專線0913-303663 +LINE
吳先生
(煩請告知聯絡人,您是在House-Info房屋網看到廣告,感恩幫忙)
0913-303-663
中正區捷運東門站商圈法拍屋瀧園大樓附車位
市話:
法拍屋代標服務 吳先生 0913303663 02-22650614 03-3293994
公司名稱:
財欣不動產管理顧問有限公司/專業代標/營業員(97)經證字號001562
公司地址:
新北市土城區金城路二段396號11樓/桃園市莊敬路一段346號4樓/統編:22857204
個人網站:
www.法拍屋代標服務.tw
留言
檢舉
加LINE好友
物件介紹
詳細資料
最後更新
:
1小時內
銷售狀態
:
待標中
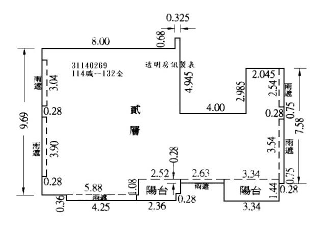
格局
:
4房,2廳,2衛,2陽台,1廚房
社區/大樓
:
瀧園
屋齡
:
24年
車位
:
02號
所在樓層
:
2樓/共7樓
電梯
:
有
是否凶宅
:
不是
法拍件
:
本件是法拍屋
拍次
:
一拍
開標日期
:
114/12/24(三)
法拍件
:
周邊環境
生活機能
:
新生市場,東門市場,私立巨勝幼兒園,大安森林公園,長流美術館台北館,幸安國小,台北星辰飯店,捷運東門站,建國北路高架道路,
鄰近交通
:
國道1號圓山交流道,公車仁愛臨沂街口站,可搭乘37,222,270假日,270平日,630,651假日,651平日,仁愛幹線假日,仁愛幹線平日號公車
坪數說明
建物登記總坪數
:
67.69
主建物坪數
:
33.00
附屬建物坪數
:
4.31
公共設施坪數
:
23.58
土地登記總坪數
:
16.33
特色描述
♛一零四法拍網(創立40週年)業界最大/專業團隊/全省服務/值得託付~
♠︎專業代標『吳先生』全程為您服務♠︎代標專線☎0913303663點入+line
💥💥💥刊登內容以公告機關為準請投標人注意🔥🔥🔥
法院筆錄:●點交情形→有點交●
1‧1372建號建物於114年2月6日現場查封時,該建物無門牌,並經現場與債權人之代理人確認,大樓2樓左側大門即為「臺北市中正區臨沂街59巷10號2樓」;具債權人陳報目前房屋為空屋,無人使用,故本件拍定後點交。
2‧拍賣標的經查相關主管機關後,並無發生非自然死亡情形,亦無發生過火災事件,亦非屬列管之海砂屋、輻射屋、地震受損屋,惟建物實際狀況須經專業人員辦理相關鑑定及偵測始能確認是否為海砂屋、有無輻射、有無地震受創,應由拍定人自行查明,請應買人注意。《台北地方法院案號:113年度司執宇字第146469號,給付票款》
[他項權利:拍後塗銷]
[謄本]:總坪數67.69坪[主建坪33.00坪,附屬坪4.31坪,停車坪6.80坪(建號:1377),公設坪23.58坪(建號:1377)][RC造/住家用]
⚖️拍賣機關公告
📣司法院法拍屋公告📣國有財產署標售不動產資訊📣台灣金服含未辦繼承法拍物件
📣法拍屋拍定價公告📣法務部行政執行署法拍物件📣產權清楚☆強制執行法【77條”81條】
🔎法拍一點不燒腦~~眉角全都在這邊~~懶人包裡報您知~~
📣📣104法拍網/透明房訊/法拍屋,土地全省最新拍賣資訊
📣台北法拍屋快搜📣新北法拍屋快搜📣桃園法拍屋快搜📣台中法拍屋快搜
♠北區熱門法拍屋♠北區法拍屋精選♠樂屋網
⏳法拍屋代標流程~~
1.銀行代墊尾款:(最高可貸八成)2.現場合理價格評估
3.得標協助辦理過戶4.點交全程不用陪同
5.和諧交付等您入住6.未得標不收取費用
☛法拍代標找專業~☛投標必中下決心~☛過了這村沒那店~☛別讓資金睡著了
❤誠摯讓您感受最優質的代標全程服務
自備2成輕鬆成家~特約銀行核撥快速~只有買方安心選購~彈性出價理財首選~
❦免費諮詢可+line❦望您來電問透透❦消除疑慮再委託❦收費契約最透明
❦❦❦❦❦❦❦❦❦❦❦❦❦❦❦❦❦❦❦❦❦❦❦❦❦❦❦❦❦
雙北助理專線☎02-22650614桃園助理專線☎03-3293994全省☎0913303663
🏘️經紀業:財欣不動產管理顧問有限公司統一編號:22857204
✍經紀人:(97)年北市經證字001562號
💼營業員:(98)登字第133601號
❦❦❦❦❦❦❦❦❦❦❦❦❦❦❦❦❦❦❦❦❦❦❦❦❦❦❦❦❦❦❦❦❦❦❦❦
生活e點通~
📣財政部新青安成家📣全國地政電子謄本系統📣地籍圖便民服務📣房地合一專區
📣台北捷運路線圖📣新北捷運路線圖📣桃園捷運路線圖📣台中捷運路線圖
物件照片
台北拍賣大樓-0
台北拍賣大樓-1
台北拍賣大樓-2
台北拍賣大樓-3
台北拍賣大樓-4
台北拍賣大樓-5
台北拍賣大樓-6
贊助商廣告
物件留言
請注意,如果您詢問的內容與物件不相符合或是廣告,經過審核,系統將會直接刪除您的發問內容
檢舉不實
黃金曝光
大安區
售2940萬
台北大安區通化街200巷31號5樓之2
類型:大樓
坪數:45.36坪
格局:4房
信義區
售3852萬
台北信義區信義路五段109號5樓
類型:大樓
坪數:49.86坪
格局:3房
松山
售4883萬
台北松山三民路35巷1號3樓-2<13>
類型:大樓
坪數:74.76坪
信義區
售3852萬
台北信義區信義路五段109號5樓<12>
類型:大樓
坪數:49.86坪
房仲推薦
本網站保留一切權利,非經正式書面同意,禁止轉貼節錄。
資料處理中,請稍後...
請注意:此案件已下架