中央研究院生活圈法拍屋透天二層三房含陽台

104法拍屋,新北法拍屋,台北法拍屋
透明房訊,台北104法拍,台北法拍屋
法拍屋,法拍屋代標,法拍屋出售
汐止東勢街法拍屋|研究苑社區|透天二層三房
列印
  • 售1353萬4000元
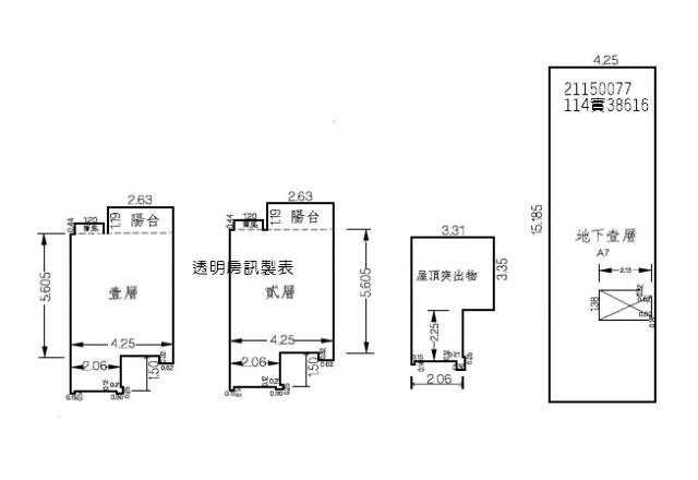
    1. 案號:一拍【114實38616】
    2. 類型:法拍透天_大尖山風景區
    3. 總登記坪數:43.06坪
    4. 每坪單價:31.43萬/坪
    5. 地址:新北市汐止區東勢街201巷373號2層樓室內車庫,法拍屋代標 專線0913-303663 +LINE
    1. (煩請告知聯絡人,您是在House-Info房屋網看到廣告,感恩幫忙)
    2. 0913-303-663
    1. 市話:
    2. 公司名稱:
    3. 公司地址:
    4. 個人網站:
    中央研究院生活圈法拍屋透天二層三房含陽台-QR CODE 留言 檢舉 加LINE好友
物件介紹
詳細資料
最後更新
4小時內
銷售狀態
待標中
格局
3房,1廳,2衛,2陽台,1廚房
社區/大樓
研究苑
屋齡
30年
所在樓層
2層透天含未保存
管委會
電梯
未知
是否凶宅
不是
法拍件
本件是法拍屋
拍次
一拍
開標日期
115/5/6(三)
法拍件
周邊環境
生活機能
林森公有市場,大尖山風景區,白匏湖景區山水綠生態公園,舊庄國小,誠正國中,樟樹國際實創高中,中央研究院,南港展覽館,近白雲山莊,北后雲天宮,總戶數約504戶,國道三號南港交流道,捷運南港展覽館站,
坪數說明
建物登記總坪數
43.06
主建物坪數
35.14
附屬建物坪數
6.99
公共設施坪數
0.93
增建坪數
18.04
土地登記總坪數
22.22
特色描述
♛一零四法拍網(創立40週年)業界最大/專業團隊/全省服務/值得託付~

♠︎專業代標『吳先生』全程為您服務♠︎代標專線☎0913303663點入+line

💥💥💥刊登內容以公告機關為準請投標人注意🔥🔥🔥

法院筆錄:●點交情形→詳如備註●

1‧2203建號、3097建號拍定後點交,其餘係拍賣不動產應有部分,拍定後不點交。

2‧民國114年3月13日現場查封時,2203建號、3097建號房屋有第三人TARMUNAN在場稱係受僱之外傭,房屋現由其及債務人母親居住。經入內檢視內部有夾層,頂樓、天井皆有漏水,每層牆壁皆有壁癌,且有剝落情形。依強制執行法第113條準用第69條之規定,拍賣物買受人就物之瑕疵無擔保請求權,不得於拍定後主張,請應買人留意。另據社區總幹事稱1316建號係作為社區公設之體育館使用、2361建號係作為社區辦公室使用、2084建號係作為游泳池使用。惟現在實際情形如何,仍請應買人自行查明注意。

3‧3097建號係未登記建物,為頂樓屋突增建及1、2樓之夾層,依新北市政府違章建築拆除大隊114年8月6日新北拆認二字第1143268250號函示,該建物於列管系統內尚無違章建築認定紀錄,惟違章建築皆應列入分類分期處理,倘案經查認影響公共安全或經發現屬新建造之違章建築,或被列入專案處理者,將限期拆除。拆除風險請應買人自行注意,本件拍賣係以建物現況拍賣,當事人及拍定人均不得以面積不符,請求增減價金,拍定後無法以權利移轉證書辦理建物登記。

4‧投標人應自行查明債務人有無積欠管理費,並注意拍定後民法第826條之1第3項規定之適用問題。

《清償票款》

[他項權利:拍後塗銷]

[謄本]:總坪數43.06坪[主建坪35.14坪,附屬坪6.99坪,公設坪0.93坪(建號:1316,1317,2361,2084)],另增建坪18.04坪[RC造/住商用]

⚖️拍賣機關公告

📣司法院法拍屋公告📣國有財產署標售不動產資訊📣台灣金服含未辦繼承法拍物件

📣法拍屋拍定價公告📣法務部行政執行署法拍物件

📣產權清楚☆強制執行法【77條”81條】#瑕疵不擔保#【69條】

🔎法拍一點不燒腦~~眉角全都在這邊~~懶人包裡報您知~~

📣📣104法拍網/透明房訊/法拍屋,土地全省最新拍賣資訊

📣台北法拍屋快搜📣新北法拍屋快搜📣桃園法拍屋快搜📣台中法拍屋快搜

♠北區熱門法拍屋♠北區法拍屋精選♠樂屋網

⏳法拍屋代標流程~~

1.銀行代墊尾款:(最高可貸八成)2.現場合理價格評估

3.得標協助辦理過戶4.點交全程不用陪同

5.和諧交付等您入住6.未得標不收取費用

☛法拍代標找專業~☛投標必中下決心~☛過了這村沒那店~☛別讓資金睡著了

❤誠摯讓您感受最優質的代標全程服務

自備2成輕鬆成家~特約銀行核撥快速~只有買方安心選購~彈性出價理財首選~

❦免費諮詢可+line❦望您來電問透透❦消除疑慮再委託❦收費契約最透明

❦❦❦❦❦❦❦❦❦❦❦❦❦❦❦❦❦❦❦❦❦❦❦❦❦❦❦❦❦

雙北助理專線☎02-22650614桃園助理專線☎03-3293994全省☎0913303663

🏘️經紀業:財欣不動產管理顧問有限公司統一編號:22857204

✍經紀人:(97)年北市經證字001562號

💼營業員:(98)登字第133601號

❦❦❦❦❦❦❦❦❦❦❦❦❦❦❦❦❦❦❦❦❦❦❦❦❦❦❦❦❦❦❦❦❦❦❦❦

生活e點通~

📣財政部新青安成家📣全國地政電子謄本系統📣地籍圖便民服務📣房地合一專區

📣台北捷運路線圖📣新北捷運路線圖📣桃園捷運路線圖📣台中捷運路線圖
物件照片
新北透天法拍-0
新北透天法拍-0
新北透天法拍-1
新北透天法拍-1
新北透天法拍-2
新北透天法拍-2
新北透天法拍-3
新北透天法拍-3
新北透天法拍-4
新北透天法拍-4
贊助商廣告
桃園廠房,桃園廠房出租,桃園廠房出售
新北法拍屋,新北市法拍屋,新北法院法拍屋
物件留言
請注意,如果您詢問的內容與物件不相符合或是廣告,經過審核,系統將會直接刪除您的發問內容
等待圖示
檢舉不實
等待圖示
黃金曝光
本網站保留一切權利,非經正式書面同意,禁止轉貼節錄。