三民區大樓三民區房屋三民區買屋
首頁
│
法拍屋導覽
│
法拍地導覽
│
房仲導覽
│
House-Info房屋網
│
889house.info
│
申請房仲網站
07-7963288
客服電話
首頁
台北
新北
基隆
桃園
新竹
苗栗
台中
彰化
南投
雲林
嘉義
台南
高雄
屏東
台東
宜蘭
花蓮
澎湖
金門
現在位置:
首頁
›
高雄法拍屋
›
三民區法拍屋
›
三民區大樓三民區房屋三民區買屋-高雄市三民區河堤路
售
河堤公園|樓中樓|三房平車
列印
售1430萬
類型:
大樓
總登記坪數:
48.667坪
每坪單價:
29.38萬/坪
地址:
高雄市三民區河堤路
鍾溫雅(阿雅)
(煩請告知聯絡人,您是在House-Info房屋網看到廣告,感恩幫忙)
0935-311-298
三民區大樓三民區房屋三民區買屋
市話:
07-3150808 或0935-311-298
公司名稱:
永義房屋 高雄美術擁樂加盟店
公司地址:
高雄市鼓山區美術東二路530號
個人網站:
www.168吉屋.tw
留言
檢舉
加LINE好友
物件介紹
詳細資料
最後更新
:
1小時內
銷售狀態
:
帶看中
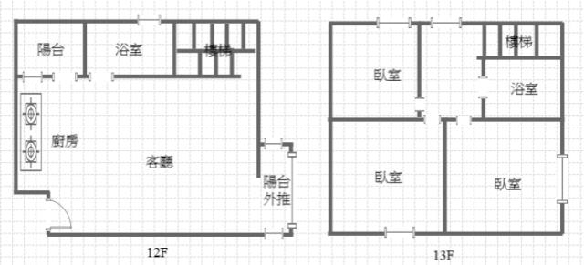
格局
:
3房,2廳,2衛,1陽台,1廚房
屋齡
:
28年
車位
:
坡道式平面車位
無障礙環境
:
有
所在樓層
:
12~13樓/共14樓
管理費
:
2326元/月
管委會
:
有
中庭
:
有
電梯
:
有
面前道路
:
15米
是否凶宅
:
不是
法拍件
:
本件不是法拍
法拍件
:
周邊環境
生活機能
:
佳
鄰近交通
:
便捷
鄰近地標
:
河堤公園
公園綠地
:
河堤公園
鄰近學區
:
河堤國小
捷運站
:
巨蛋
坪數說明
建物登記總坪數
:
48.4
主建物坪數
:
28.12
附屬建物坪數
:
2.87
公共設施坪數
:
10.68
停車位坪數
:
6.98
土地登記總坪數
:
5.42
特色描述
★高雄小天母河堤社區,面河堤公園,享天然綠意與陽光
★近學區.公園.河堤圖書館,一應俱全超便利
★近漢神巨蛋.義享天地、明誠裕誠商圈,優質地段
★明星學區:河堤國小、龍華國中,近河堤圖書館
★次高樓,樓中樓格局,規劃三房兩衛採光極優
★屋主持有13年,屋況好,兩間浴室都有重作,一卡皮箱可入住
★客廳旁陽台外推,實際使用空間更大,配B1獨立車位
宏琳建設-石琳好來屋
總戶數280
土地-持分
第四種住宅區
12F-12.66坪/13F-15.45坪/陽台-2.87坪
物件照片
高雄三民區大樓-0
高雄三民區大樓-1
高雄三民區大樓-2
高雄三民區大樓-3
高雄三民區大樓-4
高雄三民區大樓-5
高雄三民區大樓-6
高雄三民區大樓-7
高雄三民區大樓-8
高雄三民區大樓-9
高雄三民區大樓-10
高雄三民區大樓-11
高雄三民區大樓-12
物件地圖
三民區大樓三民區房屋三民區買屋
三民區大樓三民區房屋三民區買屋
到Google查看地圖
到Google查看街景
贊助商廣告
物件留言
請注意,如果您詢問的內容與物件不相符合或是廣告,經過審核,系統將會直接刪除您的發問內容
檢舉不實
黃金曝光
楠梓
售898萬
高雄楠梓惠豐街
類型:大樓
坪數:35.923坪
格局:3房
鼓山
售4880萬
高雄鼓山南屏路
類型:大樓
坪數:84.391坪
格局:4房
左營
售1250萬
高雄左營立大路
類型:大樓
坪數:41.748坪
格局:3房
房仲推薦
本網站保留一切權利,非經正式書面同意,禁止轉貼節錄。
資料處理中,請稍後...
請注意:此案件已下架