一樓4房車位早安藝文莊二街2128號1樓

104法拍屋,新北法拍屋,台北法拍屋
591廠房,591桃園廠房,桃園廠房
桃園廠房,桃園廠房出租,桃園工業地
一樓【早安藝文】莊二街212-8號1樓
列印
  • 售2296萬
    售1837萬
    1. 案號:114八74058
    2. 類型:法拍大樓_一樓
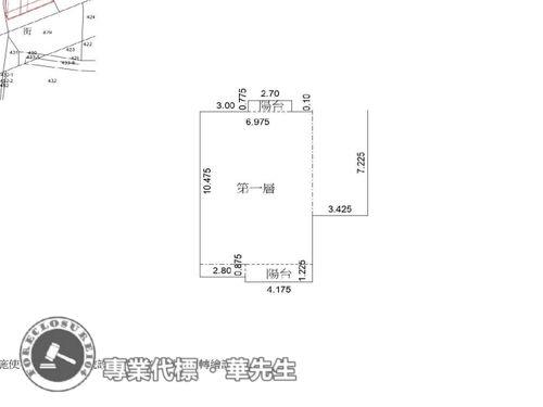
    3. 總登記坪數:57.58坪
    4. 每坪單價:31.9萬/坪
    5. 地址:桃園市桃園區莊二街212-8號1樓
    1. (煩請告知聯絡人,您是在House-Info房屋網看到廣告,感恩幫忙)
    2. 0916-000-104
    1. 市話:
    2. 公司名稱:
    3. 公司地址:
    4. 個人網站:
    一樓4房車位早安藝文莊二街2128號1樓-QR CODE 留言 檢舉 加LINE好友
物件介紹
詳細資料
最後更新
10小時內
銷售狀態
待標中
格局
4房,2廳,2衛,2陽台,1廚房
社區/大樓
早安藝文
屋齡
8年
車位
坡道式平面車位
座向
朝北
無障礙環境
所在樓層
1/14
管委會
中庭
電梯
邊間
法拍件
本件是法拍屋
拍次
3
開標日期
115/4/8
法拍件
坪數說明
主建物坪數
30.33
附屬建物坪數
2.18
公共設施坪數
16.57
停車位坪數
8.5
土地登記總坪數
11.51
特色描述
貸款才是決勝點,提供預審,保證核貸
千萬經理人,接任台灣不動產拍賣協會監事

◆門牌:莊二街212-8號1樓
◆主建物:30.33坪
◆附屬:2.18坪
◆公設:16.57坪
◆車位:8.5坪
【1車║坡平式║編號66】
◆土地:11.51坪
◆土地現值【住宅區■114年公告現值:89200元/㎡】
◆房屋用途:RC造/住家用
◆房屋樓層:所在1樓/總樓層14樓
◆房屋朝向:朝北

◎房屋格局:4房/2廳/2衛(此格局為原建設規劃或內政部實價登錄,僅供參考,以現況為準!)
◎交通動線:開車5分鐘上國道一號、鄰近中正路、寶慶路
◎公車站牌:綠意心賞[樂活巴]
◎生活機能:全聯福利中心
◎鄰近學校:莊敬國民小學
【法院筆錄】●點交情形→不點交●
1‧本件標的建物假扣押查封時據在場人表示有人居住,屋後空間為公共設施,另履勘現場時有自稱債務人公司之法定代理人在場,其表示建物目前出租予第三人使用,並稱車位目前與住戶有買賣訴訟,另據債務人陳報書面租賃契約(期間111.3.1~116.2.28)。惟本件標的建物實際使用狀況,仍請投標人應自行至現場查明瞭解後俾決定是否應買。
2‧本件停車位所有權爭議據債務人陳報經本院110年訴字第1208號判決在案,本件停車位之有無、實際編號及公共設施空間有無約定使用請應買人自行查明或向大樓管理委員會查詢,停車位不在點交之列且拍定後應買人不得以停車位有無為由請求撤銷拍定,請應買人注意。《清償債務》

※無人買受時,酌減20%估算,概以執行單位公告為準
第一拍01/21底標價:2870萬
第二拍03/11底標價:2296萬
第三拍04/08底標價:1837萬
第四拍未定底標價:1654萬

王牌經理人,十六年以上法拍經驗豐富
眼光最精準,代標多筆億元以上的案件
在地最深耕,資源豐富廣闊人脈執行力
協助自用者,找到理想實用的房屋圓夢
幫助投資人,創造物件最高投資報酬率
最專業團隊,讓您案件事半功倍又圓滿

【在地深耕,眼光精準,人脈廣闊】
■產權清楚、案件評估、排除瑕疵事故
■全程負責、快速交屋、拍後不被騷擾
■代墊利率6.3%、額度8成、手續費0.3%
■房貸利率2.65%、免排隊、立即撥款
■法拍屋代墊款、需要資金、歡迎找我

104法拍網|透明房訊|全國最大
◆規模最大◈歷史最久◆
全國七處分公司,300多位編制人員
成立於1986年,全國16家法院駐點
◆專業最強◈全國唯一◆
全國超過1800場授課專業講習
100坪倉庫,造冊拍賣遺留物
◆正派經營◈開立發票◆
營業員(99)登159091號
經紀人(96)年北市經證字01243號
一零四法拍網(股),統編28306523

能看屋的,網頁會註明。一般法拍屋查封之後無法入內參觀,可依據建物平面圖推斷室內格局是否方正,或參考樓上樓下鄰居房屋。(預約看屋留言,一律不回)
物件照片
桃園桃園區法拍大樓-0
桃園桃園區法拍大樓-0
桃園桃園區法拍大樓-1
桃園桃園區法拍大樓-1
桃園桃園區法拍大樓-2
桃園桃園區法拍大樓-2
桃園桃園區法拍大樓-3
桃園桃園區法拍大樓-3
桃園桃園區法拍大樓-4
桃園桃園區法拍大樓-4
桃園桃園區法拍大樓-5
桃園桃園區法拍大樓-5
桃園桃園區法拍大樓-6
桃園桃園區法拍大樓-6
桃園桃園區法拍大樓-7
桃園桃園區法拍大樓-7
桃園桃園區法拍大樓-8
桃園桃園區法拍大樓-8
桃園桃園區法拍大樓-9
桃園桃園區法拍大樓-9
桃園桃園區法拍大樓-10
桃園桃園區法拍大樓-10
桃園桃園區法拍大樓-11
桃園桃園區法拍大樓-11
桃園桃園區法拍大樓-12
桃園桃園區法拍大樓-12
桃園桃園區法拍大樓-13
桃園桃園區法拍大樓-13
贊助商廣告
大桃園廠房,大桃園工業地,大桃園工業地廠房
桃園廠房出租,桃園工業地,桃園廠房工業地
物件留言
請注意,如果您詢問的內容與物件不相符合或是廣告,經過審核,系統將會直接刪除您的發問內容
等待圖示
檢舉不實
等待圖示
黃金曝光
本網站保留一切權利,非經正式書面同意,禁止轉貼節錄。